はじめに
本書は「PHONE APPLI PEOPLE」(以降、「PA PEOPLE」と表記します)のオプションサービス「PHONE APPLI PLACE」(以降、「PA PLACE」と表記します)をご利用いただく際のユーザーガイドです。
1. PA PLACEとは
「PA PLACE」は、「PA PEOPLE」のオプションサービスです。
社内Wi-Fi配下のPC・スマートフォンのMACアドレスや、Beaconタグなどの位置情報タグをキーに、ユーザーの位置情報を社内電話帳(一覧、詳細)およびフロアマップに表示する機能です。
2. ユーザーから探す
2.1. 社内電話帳での位置情報(Web)
2.1.1. ステータス
スマートデバイスやPCのMACアドレス、位置情報タグを設定しているユーザーは、スマートフォンアイコン・PCアイコン・ビーコンアイコンや位置名が表示されます。
※ データを取得している間は、「Loading…」と表示されます。
濃いグレー |
: |
フロアにいる |
(位置情報を検出できている状態) |
淡いグレー |
: |
フロアにいない |
(位置情報を検出できていない状態) |
|
|
2.1.2. フロアマップ
スマートフォンアイコン・PCアイコン・ビーコンアイコンをクリックするとフロアマップが開き、そのユーザーの位置がフロアマップに表示されます。
ユーザー画像にマウスオーバすると、氏名や部署といったユーザー情報が表示されます。
[
]またはフロアマップ外のグレー部分をクリックすると、フロアマップが閉じます。
2.2. 社内電話帳での位置情報(スマートフォン)
2.2.1. ステータス
スマートデバイスやPCのMACアドレス、位置情報タグを設定しているユーザーは、ステータスアイコンが表示されます。
青 |
: |
フロアにいる |
(位置情報を検出できている状態) |
グレー |
: |
フロアにいない |
(位置情報を検出できていない状態) |
|
|
2.2.2. フロアマップ
ステータスアイコンをタップすると、そのユーザーの位置名が表示されます。
さらにスマートフォンアイコン・PCアイコン・ビーコンアイコンをタップするとフロアマップが開き、そのユーザーの位置がフロアマップに表示されます。
- マップ設定
-
管理者によってマップ(画像)が変更された場合は、自動的に最新のマップに更新されます。
また、手動でマップを更新することもできます。手動で更新する方法は次のとおりです。-
[その他]>[設定]>[マップ設定]を開く。
-
[マップを更新する]をタップする。

-
3. フロアマップから探す
3.1. PA PLACEでの位置情報(Web)
3.1.1. PA PLACE
-
画面左の遷移リンクまたはホームの各ページへのリンク内にある[PA PLACE]をクリックします。
-
「PA PLACE」に遷移します。位置情報を見たいフロアをクリックします。
※ スマートデバイス、PC、ビーコンすべて同じフロアマップに表示されます。
- ブックマーク
-
よく見るフロアをブックマークに登録できます。
-
※ ブックマークに登録したフロアには、[
]が表示されます。最大5件まで登録できます。 -
※ 順番はドラッグ&ドロップで並べ替えることができます。
-
※ 再度[
]をクリックすると、ブックマークを解除できます。 -
※ ブックマークはブラウザのローカルストレージに保存されます。そのため、他のPCやブラウザでPA PLACEにアクセスしても、ブックマークは表示されません。また、同じPCの同じブラウザで複数のユーザーがPA PLACEにアクセスすると、他のユーザーのブックマークが表示されることがあります。

-
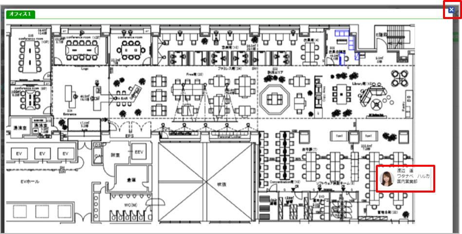
3.1.2. フロアマップ
ユーザー画像にマウスオーバすると、氏名や部署といったユーザー情報が表示されます。ユーザー情報をクリックすると、そのユーザーの社内電話帳 連絡先詳細が開きます。
※ フロアマップをドラッグ&ドロップすると、表示する位置を移動できます。
- 座標が完全に一致する場合
-
MACアドレスが検出される場所は一定であるため、人数が表示されます。
人数をクリックするとその場所にいるユーザー(同じMACアドレスを登録されたユーザー)が表示されます。各ユーザーのユーザー情報をクリックすると、そのユーザーの社内電話帳 連絡先詳細が開きます。

- 特定の位置情報ソリューション利用時
-
位置情報ソリューションがCisco Merakiやビーコンタイプである場合、位置情報タグが検出されたアクセスポイント(AP)やビーコン受信機を中心として周囲に、顔画像アイコンが表示されます。表示しきれなくなるとAPやビーコン受信機の配置されている場所に、数字で集約した形で表示されます。
改訂履歴表
| 改訂年月日 | 項番/項目 | 改訂内容 |
|---|---|---|
2019.07.31 |
新規作成 |
|
2019.08.14 |
全体 |
ビーコン対応に伴う修正 |
2019.09.06 |
全体 |
画像を修正 |
表紙 |
タイトルを修正 |
|
2019.11.28 |
全体 |
画面UI変更 |
2021.04.23 |
全体 |
画面UI変更 トップ→ホーム |
2021.10.01 |
3.2.1 |
画面UI変更に伴う修正 |
2022.03.30 |
3.2.1-3.2.2 |
画面UI変更 |
2022.04.22 |
3.2.1-3.2.2 |
画面UI変更 |
2023.09.29 |
2.2.1 |
画面UI変更 |
2024.02.28 |
2.1 |
章立てを変更 |
2.1.1 |
画面UI変更 |
|
2024.04.24 |
2.2.2 |
マップ設定の説明を追記 |
2024.09.27 |
3.1.1 |
画面UI変更 |
2025.01.30 |
3.1.1 |
拠点を追記 |
2025.05.29 |
2.1.1 |
画面UI変更 |
2025.07.24 |
2.2.1 |
画面UI変更 |
3.1.1 |
ブックマークアイコンの説明を追記 |
|
2025.11.28 |
全体 |
「ユーザー」の表記を統一 |



